NEWS
ELTON GLAMPING FARM
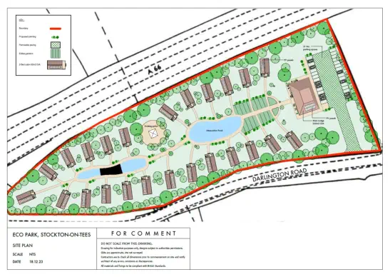
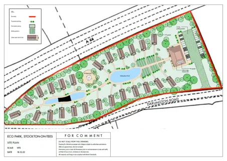
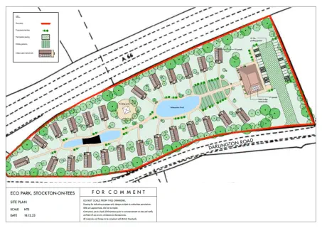
St Joseph’s Property Solutions in partnership with H&G are delighted to bring to the market this desirable Free Hold - Property Development which is located on the outskirts of the picturesque village of Elton in Northumberland and presents huge scope for the first-time property investor. This is an ideal platform for an existing property investor looking to add to their portfolio of properties and it will equally suit someone with no relevant experience or someone with a keen interest in the Hospitality / Glamping / Horses & the Equestrian sector. Positioned in a lovely green - quiet - rural area, this is a fantastic opportunity for someone looking to purchase a property which is bursting with Green / Eco Credentials, with huge income generating possibilities via the Air B&B and all of the Traditional Holiday routes. Green & Eco Green Investments are businesses or funds that seek ways to reduce harmful pollutants or use resources more sustainably. This can come in the form of alternative technologies, such as solar / wind power, or researching ways to use resources more efficiently. Eco-friendly investments can provide profits as well as environmental benefits. Older technologies such as fossil fuels and polluting industries are likely to face higher costs and regulatory barriers as the world adjusts to climate change, providing a market opportunity for alternatives. Our business model is truly diversified, successfully generating a high annual income. By offering individual Luxury Log Cabins for Fractional Ownership, the business will cater for Investors who are looking for something with Green / Ethical - Eco credentials. Eco-investing or green investing is a form of socially responsible investing where investments are made in companies that support or provide environmentally friendly products and practices. These companies encourage new technologies that support the transition from carbon dependence to more sustainable alternatives. Luxury Log Cabins A renewable and sustainable natural product Scandinavian log cabins are truly natural products, the production of which consumes very little energy: the wood construction process has a considerably lower impact on the environment than other materials. Finland, which is, in fact, the most forested country in Europe, has been committed to sustainable forest management already for several generations. Renewable construction materials are obtained ecologically from well-cared Finnish forests. Our production processes use materials as efficiently as possible and the resulting by-products are used as thermal heat energy in the factory, so nothing is wasted! Reduce your carbon footprint - build from wood Wood can absorb carbon dioxide from the atmosphere and store it during its whole lifespan. Choosing wood as the building material of your house reduces carbon dioxide in the air and significantly counteracts global warming. Wood binds carbon dioxide; other materials produce it. Wood is the most ecological building material whose durability has been tested during its growth in the Finnish forests in the harsh conditions of storms, rain, drought and extreme temperatures. Log houses last from generation to generation – the oldest log houses in Finland, which are still in residential use today, are already hundreds of years old.
© Harriet & George Legal Consultants, 2025 ® The H&G logo and name is Protected by a Trade Mark
NEWS
ELTON GLAMPING FARM
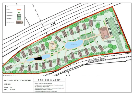
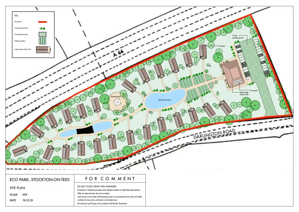
St Joseph’s Property Solutions in partnership with H&G are delighted to bring to the market this desirable Free Hold - Property Development which is located on the outskirts of the picturesque village of Elton in Northumberland and presents huge scope for the first- time property investor. This is an ideal platform for an existing property investor looking to add to their portfolio of properties and it will equally suit someone with no relevant experience or someone with a keen interest in the Hospitality / Glamping / Horses & the Equestrian sector. Positioned in a lovely green - quiet - rural area, this is a fantastic opportunity for someone looking to purchase a property which is bursting with Green / Eco Credentials, with huge income generating possibilities via the Air B&B and all of the Traditional Holiday routes. Green & Eco Green Investments are businesses or funds that seek ways to reduce harmful pollutants or use resources more sustainably. This can come in the form of alternative technologies, such as solar / wind power, or researching ways to use resources more efficiently. Eco-friendly investments can provide profits as well as environmental benefits. Older technologies such as fossil fuels and polluting industries are likely to face higher costs and regulatory barriers as the world adjusts to climate change, providing a market opportunity for alternatives. Our business model is truly diversified, successfully generating a high annual income. By offering individual Luxury Log Cabins for Fractional Ownership, the business will cater for Investors who are looking for something with Green / Ethical - Eco credentials. Eco-investing or green investing is a form of socially responsible investing where investments are made in companies that support or provide environmentally friendly products and practices. These companies encourage new technologies that support the transition from carbon dependence to more sustainable alternatives. Luxury Log Cabins A renewable and sustainable natural product Scandinavian log cabins are truly natural products, the production of which consumes very little energy: the wood construction process has a considerably lower impact on the environment than other materials. Finland, which is, in fact, the most forested country in Europe, has been committed to sustainable forest management already for several generations. Renewable construction materials are obtained ecologically from well-cared Finnish forests. Our production processes use materials as efficiently as possible and the resulting by-products are used as thermal heat energy in the factory, so nothing is wasted! Reduce your carbon footprint - build from wood Wood can absorb carbon dioxide from the atmosphere and store it during its whole lifespan. Choosing wood as the building material of your house reduces carbon dioxide in the air and significantly counteracts global warming. Wood binds carbon dioxide; other materials produce it. Wood is the most ecological building material whose durability has been tested during its growth in the Finnish forests in the harsh conditions of storms, rain, drought and extreme temperatures. Log houses last from generation to generation – the oldest log houses in Finland, which are still in residential use today, are already hundreds of years old.
© Harriet & George Legal Consultants, 2023  ® The H&G logo and name is Protected by a Trade Mark